- Woonoppervlakte
- Circa 118 m²
- Perceeloppervlakte
- Circa 350 m²
- Bouwjaar
- Gebouwd in 1959
- Aantal kamers
- 7 kamers (5 slaapkamers)
Deze halfvrijstaande woning staat op een ruim perceel van circa 350 m² op het zuidoosten, twee garages én een kantoorruimte. Hierdoor is de woning niet alleen ideaal voor gezinnen, maar ook zeer geschikt voor werken aan huis, hobbyruimte, extra opslag of zelfs een mantelwoning.
De woning ligt bovendien op een prettige locatie nabij een basisschool en diverse voorzieningen.
Indeling
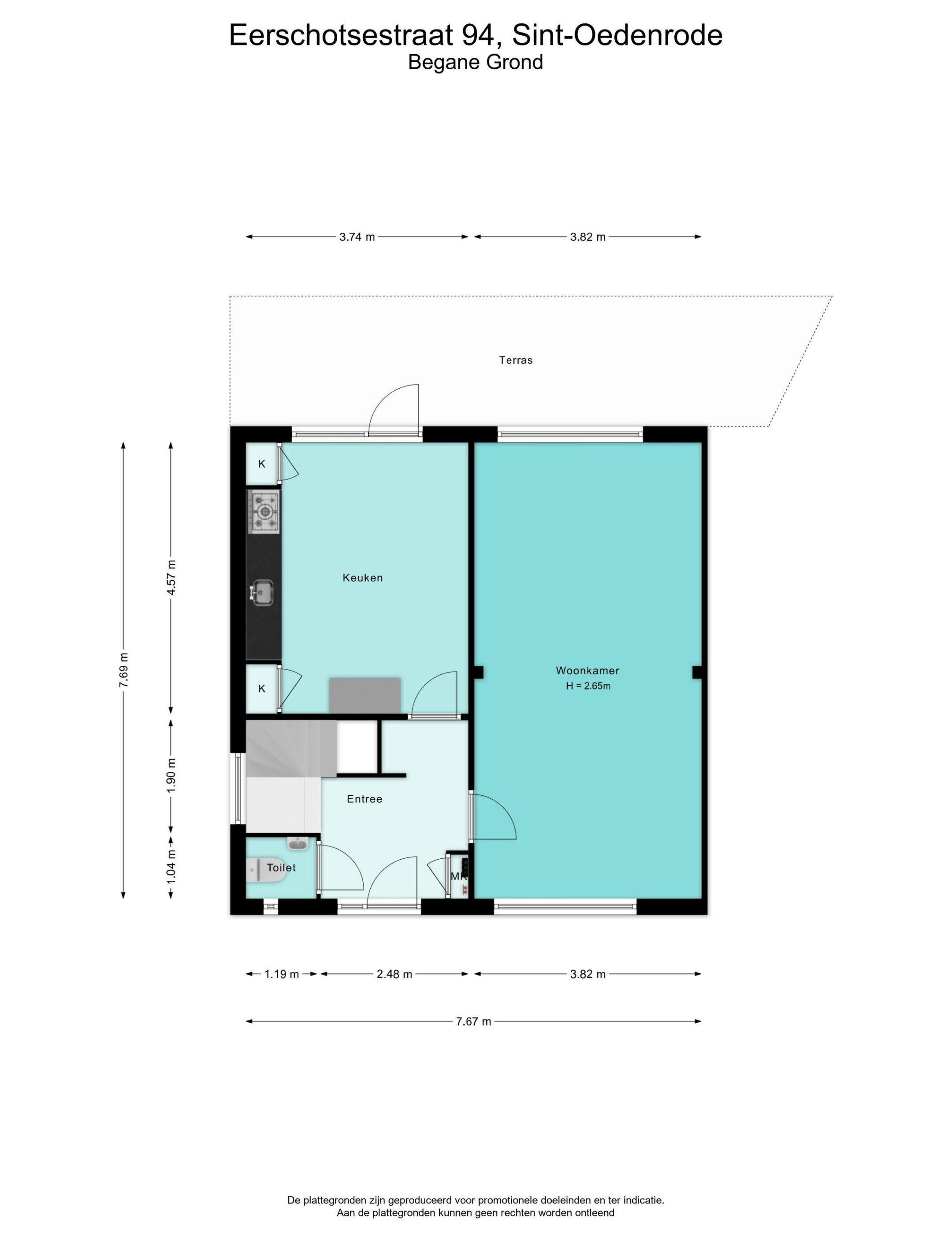
Begane grond
Via de entree/hal met meterkast, toilet, trapopgang naar de verdieping en een praktische provisiekast onder de trap komt u in de woonkamer.
De woonkamer is een lichte ruimte dankzij de grote ramen aan de voor- en achterzijde. Hierdoor valt er veel daglicht binnen en ontstaat er een prettige leefruimte. De woonkamer is voorzien van een tegelvloer en een schroten plafond en staat in verbinding met de keuken.
De woon-/eetkeuken is uitgevoerd in een rechte opstelling en beschikt over diverse inbouwapparatuur, waaronder een gaskookplaat, afzuigkap, spoelbak, vaatwasser (45 cm), combimagnetron en koelkast. In de keuken ligt een tegelvloer met vloerverwarming, wat zorgt voor extra comfort.
Eerste verdieping
De overloop geeft toegang tot drie slaapkamers, een extra kamer en de badkamer. De verdieping is voorzien van een laminaatvloer. Alle slaapkamers beschikken over een wastafel en praktische inbouwkasten.
In de vierde kamer bevindt zich de vaste trap naar de tweede verdieping. De slaapkamers zijn daarnaast voorzien van rolluiken. De badkamer is volledig betegeld en uitgerust met een douchecabine, toilet en designradiator.
Tweede verdieping
Via een vaste trap is de zolderverdieping bereikbaar. Hier bevinden zich een ruime voorzolder en een separate bergzolder. Deze verdieping biedt veel praktische bergruimte of een 5e slaapkamer.
Garage, kantoor en tuin
De woning beschikt over een aangebouwde garage met lange oprit naast de woning. In deze garage bevindt zich tevens de cv-combiketel (2004)
Daarnaast is er een tweede garage in de achtertuin, bereikbaar via de inrit rechts van de woning en recht van overpad om zo op het perceel te komen. Deze vrijstaande ruimte maakt de woning bijzonder geschikt voor werken aan huis, een hobbyruimte of chill room of een mantelwoning. Eigen cv ketel (2021) voor kantoor en chill room. De vloer is voorzien van laminaat vloer.
De achtertuin ligt op het zuidoosten en met een perceel van circa 350 m² een ruim formaat, waardoor u hier volop kunt genieten van ruimte, privacy en zon.
Bijzonderheden:
* Halfvrijstaande woning met veel mogelijkheden
* Achtertuin op het zuidoosten
* Vrijstaande kantoorruimte / werken aan huis / chillroom of barretje.
* HR++ beglazing op de begane grond
* Rolluiken op de slaapkamers
* Perfecte ligging nabij basisschool en voorzieningen
Kom deze woning bezichtigen voor de juiste indruk en vooral de mogelijkheden.
Halfvrijstaande woning met garage, bijgebouw (evt mantelwoning) en eigen achterom.
Overdracht
- Vraagprijs
- € 525.000 k.k.
- Status
- Beschikbaar
- Aanvaarding
- In overleg
Bouw
- Object type
- Eengezinswoning, halfvrijstaande woning
- Soort bouw
- Bestaande bouw
- Bouwjaar
- 1959
- Soort dak
- Zadeldak bedekt met pannen
Oppervlakte en inhoud
- Woonoppervlakte
- 118 m²
- Perceeloppervlakte
- 350 m²
- Inhoud
- 460 m³
- Overige inpandige ruimte
- 27 m²
- Externe bergruimte
- 70 m²
Indeling
- Aantal kamers
- 7 kamers (5 slaapkamers)
- Aantal badkamers
- 1 badkamer
- Badkamervoorzieningen
- Toilet, douche, wastafel
- Aantal woonlagen
- 3 woonlagen
- Voorzieningen
- Mechanische ventilatie
Energie
- Energielabel
- D
- Energielabel registratie
- 30-01-2026
- Isolatie
- Gedeeltelijk dubbel glas
- Verwarming
- Cv-ketel, vloerverwarming gedeeltelijk
- Warm water
- Cv-ketel
- Cv ketel
- Nefit combiketel gas gestookt uit 2004 (eigendom)
Buitenruimte
- Ligging
- Aan rustige weg, in woonwijk, open ligging
- Tuin
- Achtertuin, voortuin
- Afmetingen achtertuin
- 90 m² (15 meter diep en 6 meter breed)
- ligging tuin
- Gelegen op het zuidoosten en bereikbaar via achterom
Bergruimte
- Schuur / berging
- Vrijstaand steen
- Voorzieningen
- Voorzien van verwarming, voorzien van elektra, voorzien van water
Garage
- Soort garage
- Aangebouwd steen
- Capaciteit
- 1 auto
- Voorzieningen
- Verwarming, elektra, stromend water
Parkeergelegenheid
- Soort parkeergelegenheid
- Op eigen terrein
Indicatie hypotheeklasten
Eigen inleg:
Spaargeld / overwaarde
Rente:
Laagste 10-jaars rente
Laagste 10-jaars rente
2,78% - Centraal Beheer - NHG
3,04% - Centraal Beheer - 80%
Laagste 20-jaars rente
3,29% - Centraal Beheer - NHG
3,52% - Centraal Beheer - 80%
Laagste 30-jaars rente
3,41% - Centraal Beheer - NHG
3,7% - Argenta - 80%
Hypotheek:
Bruto maandlasten: € 0 p/m
Netto maandlasten: € 0 p/m
Hoe berekenen we dit?
Het rentepercentage is gebaseerd op de laagste 10 jaars vaste rente voor één hypotheekdeel. De vermelde rente (3.04% zonder NHG) is gecontroleerd op 15-04-2026. Deze berekening is gebaseerd op een annuïteitenhypotheek die volledig wordt afgelost, waarbij de maandlasten gedurende de gehele looptijd gelijk blijven. De werkelijke rente en netto maandlasten kunnen variëren, afhankelijk van uw persoonlijke situatie en de hypotheekverstrekker. Raadpleeg een financieel adviseur voor een nauwkeurige berekening en advies. Aan deze berekening kunnen geen rechten worden ontleend; het dient enkel als indicatie.
Documentatie
Leefomgeving
_Bodeminformatie
Energielabel
Lijst_van_zaken
Vragenlijst_Deel_B
WOZ waarderapport
BAG uittreksel
Brochure
Plattegronden PDF
Bezoek onze website
Inloggen move.nl
Bezichtiging
Bod uitbrengen
Waardebepaling
Zoekopdracht
Alles downloaden
Zonnegrenzen bekijken
Inwoners in Sint-oedenrode
Cijfers voor postcodegebied 5491
- Totaal aantal inwoners
- 10965 inwoners
- Mannen
- 50%
- Vrouwen
- 50%
Inwoners in Sint-oedenrode
Cijfers voor postcodegebied 5491
- tot 15 jaar
- 17%
- 15 tot 25 jaar
- 12%
- 25 tot 35 jaar
- 22%
- 45 tot 65 jaar
- 30%
- 65 en ouder
- 19%
Huishoudens in Sint-oedenrode
Cijfers voor postcodegebied 5491
- Eenpersoons zonder kinderen
- 25%
- Meerpersoons zonder kinderen
- 34%
- Huishoudens zonder kinderen
- 59%
Huishoudens in Sint-oedenrode
Cijfers voor postcodegebied 5491
- Huishoudens met één kind
- 7%
- Huishoudens met meerdere kinderen
- 34%
- Huishoudens met kinderen
- 41%
Woningen in Sint-oedenrode
Cijfers voor postcodegebied 5491
- Woningen voor 1945
- 8%
- Woningen tussen 1945 en 1965
- 10%
- Woningen tussen 1965 en 1975
- 21%
- Woningen tussen 1975 en 1985
- 28%
- Woningen tussen 1985 en 1995
- 13%
Woningen in Sint-oedenrode
Cijfers voor postcodegebied 5491
- Woningen tussen 1995 en 2005
- 5%
- Woningen tussen 2005 en 2015
- 10%
- Woningen na 2015
- 4%
- Huurwoningen
- 20%
- Koopwoningen
- 80%
Overige in Sint-oedenrode
Cijfers voor postcodegebied 5491
- Gemiddelde WOZ waarde
- € 338.000,-
- Personen onder de 65 met uitkering
- Niet beschikbaar
Overige in Sint-oedenrode
Cijfers voor postcodegebied 5491
- Adressen per km²
- 741
- Stedelijkheid (schaal 1 op 5)
- 40%
Makelaardij Van de Laar
Reeds bijna zes decennia is Makelaardij van de Laar een toonaangevende speler in de vastgoedsector van Sint-Oedenrode en omgeving. Doorheen de jaren hebben we een indrukwekkend aantal huizen succesvol verhandeld, waardoor talrijke klanten hun droomwoning hebben gevonden. Dankzij onze ervaring en expertise zijn we gespecialiseerd in het succesvol samenbrengen van kopers en verkopers.
Door de tijd heen hebben we een breed en effectief netwerk ontwikkeld. Dit stelt ons in staat om direct in te spelen op de behoeften van mensen die op zoek zijn naar een woning, of die hun huis willen verkopen. In de huidige dynamische woningmarkt, waarin huizen snel van eigenaar wisselen, kunnen we zo snel mogelijk de ideale match vinden. Dit is zeker in jouw voordeel.
Als lid van de VBO, de toonaangevende branchevereniging voor professionele en betrouwbare makelaars en taxateurs, staat Makelaardij van de Laar garant voor kwaliteit en betrouwbaarheid. Deze vereniging zet zich niet alleen in voor de belangen van makelaars, maar ook voor die van jou als consument, om zo het beste uit de vastgoedsector te halen. En daar pluk jij de vruchten van!
Nieuwste reviews
-
Hendrik van Hamontstraat 52
Via vrienden geattendeerd op makelaardij van de Laar. Zeer professionele makelaar met kennis van zaken. De planning was strak en duidelijk,...
-
Oude Dijk 40
Heeft een uitmuntende marktkennis van huizen uit de directe omgeving waardoor onze prijsbepaling strategisch kon worden neergezet. Binnen tw...
-
Maya van Maarschalkerweerd
(Ik plaats deze recensie namens mijn vader Hans) Een huis aangekocht via van de Laar. Wat heel erg opviel was de persoonlijke benadering e...